MODULINE ENGINEERING CONSULTANCY L.L.C S.O.C
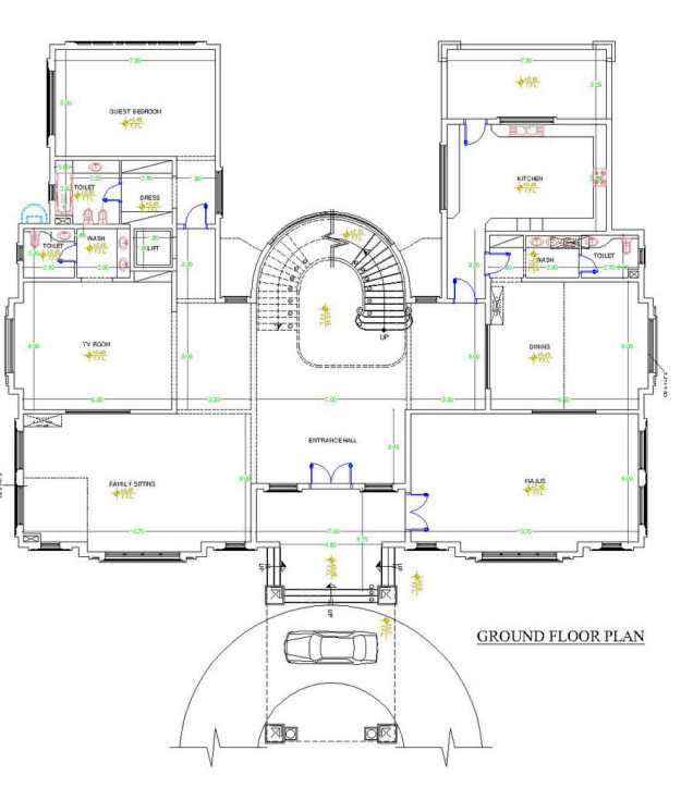
This residential villa in Nadd Al-Shiba Third, Dubai is a 5M AED development completed between 2018 and 2020, designed and built to Green Building standards. Moduline Engineering Consultancy provided end-to-end structural engineering design and consultancy services for the project, covering full structural analysis, detailed design documentation, and load calculations tailored to the site conditions and Dubai Municipality requirements. The scope also included rigorous design and authority approval coordination, ensuring all drawings and specifications met local regulatory standards before construction commenced.
Throughout the build, Moduline’s team provided hands-on site supervision and construction support — monitoring structural quality, verifying compliance with approved drawings, and resolving on-site technical challenges in real time. The structure fully meets UAE Green Building requirements and Dubai Municipality codes. This project is part of Moduline’s growing portfolio of villa engineering projects across the UAE, reflecting the firm’s expertise in technically rigorous and sustainable structural consultancy.
Have a similar project in mind? Get in touch with our team to discuss your structural engineering requirements.
Have a project in mind or need expert professional team advice you ?
MODULINE ENGINEERING CONSULTANCY L.L.C S.O.C | Combining technical innovation with the highest standards of precision to deliver integrated construction solutions.
Receive our experts' insights on securing structures and navigating engineering challenges
Copyright © 2026 All Rights Reserved | Moduline.ae